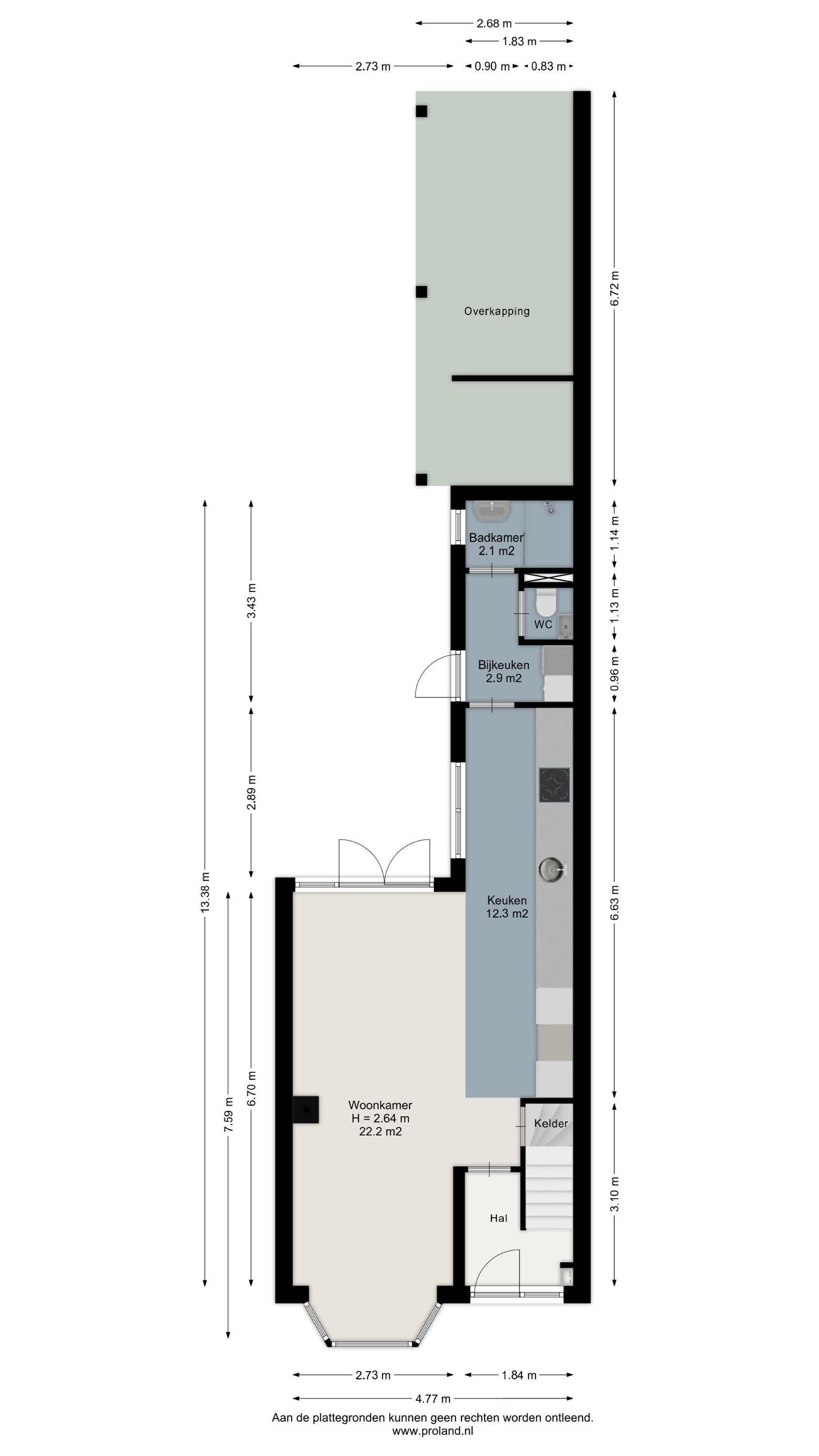
Woonoppervlakte
Circa 90 m²
Perceeloppervlakte
Circa 192 m²
Object type
Eengezinswoning, 2 onder 1 kapwoning
Aantal kamers
4 kamers (3 slaapkamers)

B.W. ter Kuilestraat 95

7545 KM, Enschede (Overijssel)

Verrassend compleet, volledig gemoderniseerd en klaar voor de volgende stap.

Sommige woningen verassen vanaf het eerste moment. Zodra je hier binnenstapt merk je het: dit huis is met liefde bewoond, met zorg onderhouden en door de jaren heen steeds verder verbeterd. Authentiek van buiten, maar van binnen helemaal van nu. En dat in een woning uit 1931, die zich al bijna een eeuw lang bewijst als een fijn thuis.

De huidige bewoners hebben niet alleen verduurzaamd, maar écht nagedacht over comfort. De houten vloer maakte plaats voor schuimbeton met vloerverwarming (2019), waardoor de begane grond heerlijk behaaglijk aanvoelt. Tel daar de houtkachel, airconditioning en een strakke afwerking bij op, en je begrijpt waarom dit zo’n prettige plek is om thuis te komen en te ontspannen.

De leefruimte loopt naadloos over in de moderne keuken. In 2022 is gekozen voor een opvallend ruime keukenopstelling over vrijwel de hele lengte van de woning. Een opstelling die je zelden ziet en die verrassend veel werk- en bergruimte biedt. Door het open karakter blijf je altijd in contact met je gezin of met gasten aan tafel. Koken wordt hier echt samen zijn.

Achter de keuken bevindt zich de praktische bijkeuken met een aparte toiletruimte en een nette badkamer met wastafel en inloopdouche (circa 8 jaar oud). Bovendien is er nog uitbreidingsruimte: het vergroten van deze badkamer behoort tot de mogelijkheden.

Op de eerste verdieping vind je twee comfortabele slaapkamers en een tweede toilet met wastafelmeubel. En dan de verrassing: via een vaste trap bereik je de tweede verdieping, waar dankzij een dakkapel een volwaardige derde slaapkamer is gerealiseerd. Daarmee is deze woning helemaal klaar voor het gezinsleven, thuiswerken of hobby’s aan huis.
Ook buiten klopt het plaatje. De verzorgde achtertuin ligt op het zuidwesten, waardoor je hier tot in de avond van de zon geniet. Onder de overkapping is het al snel goed toeven, of het nu zomer of voorjaar is. Via de achterom is de tuin eenvoudig bereikbaar.

Achter in de tuin staat een recente schuur (2023) met betonnen vloer, eigen entree en wateraansluiting. Een ideale ruimte voor hobby’s, opslag, werk aan huis of misschien wel jouw eigen mancave.

Samengevat:
- Bouwjaar 1931, volledig gemoderniseerd
- Vloerverwarming met schuimbeton (2019)
- Houtkachel, 2× airconditioning en goede isolatie
- Moderne keuken (2022) met veel werkruimte
- Badkamer + bijkeuken op de begane grond
- 3 slaapkamers, verdeeld over twee verdiepingen
- Zonnige tuin op het zuidwesten met overkapping
- Praktische schuur met betonvloer
- Instapklaar, comfortabel en verrassend ruim

Deze woning combineert karakter met hedendaags comfort een huis dat je moet beleven om het echt te begrijpen. Nieuwsgierig geworden? Plan snel een bezichtiging en laat je verrassen. www.bwterkuilestraat95.nl

Plattegronden

Overdracht

Vraagprijs
€ 300.000 k.k.
Status
Beschikbaar
Aanvaarding
In overleg

Bouw

Object type
Eengezinswoning, 2 onder 1 kapwoning
Soort bouw
Bestaande bouw
Soort dak
Mansarde dak bedekt met pannen

Oppervlakte en inhoud

Woonoppervlakte
90 m²
Perceeloppervlakte
192 m²
Inhoud
337 m³
Externe bergruimte
34 m²
Gebouwgeb. buitenruimte
18 m²

Indeling

Aantal kamers
4 kamers (3 slaapkamers)
Aantal badkamers
1 badkamer
Badkamervoorzieningen
Douche, wastafel
Aantal woonlagen
3 woonlagen

Energie

Energielabel
D
Energielabel registratie
09-04-2026
Isolatie
Dakisolatie, vloerisolatie, gedeeltelijk dubbel glas
Verwarming
Cv-ketel
Warm water
Cv-ketel
Cv ketel
Carrier, magnum combiketel gas gestookt uit 2011 (eigendom)

Buitenruimte

Ligging
In woonwijk
Tuin
Achtertuin, voortuin
Afmetingen achtertuin
31 m² (6.41 meter diep en 4.77 meter breed)
ligging tuin
Gelegen op het zuidoosten en bereikbaar via achterom

Bergruimte

Schuur / berging
Onbekend
Voorzieningen
Voorzien van elektra, voorzien van water

Garage

Soort garage
Geen garage

Parkeergelegenheid

Soort parkeergelegenheid
Openbaar parkeren

Energieverbruik in Enschede

Energielabel deze woning

Energielabel D

Publicatie energielabel: 09-04-2026

Stroomverbruik per jaar

3130 kWh

(Gemiddelde twee onder een kap in Enschede)

Gasverbruik per jaar

1410 m³

(Gemiddelde twee onder een kap in Enschede)

* Cijfers zijn afkomstig van het CBS en bedoeld als indicatie en kunnen verschillen voor deze woning

Indicatie hypotheeklasten

Eigen inleg:
Spaargeld / overwaarde

Rente:
Laagste 10-jaars rente

Laagste 10-jaars rente

2,78% - Centraal Beheer - NHG


3,04% - Centraal Beheer - 80%

Laagste 20-jaars rente

3,29% - Centraal Beheer - NHG


3,52% - Centraal Beheer - 80%

Laagste 30-jaars rente

3,41% - Centraal Beheer - NHG


3,7% - Argenta - 80%


Hypotheek:

Bruto maandlasten: € 0 p/m

Netto maandlasten: € 0 p/m

Hoe berekenen we dit?

Het rentepercentage is gebaseerd op de laagste 10 jaars vaste rente voor één hypotheekdeel. De vermelde rente (2.78% met NHG) is gecontroleerd op 29-04-2026. Deze berekening is gebaseerd op een annuïteitenhypotheek die volledig wordt afgelost, waarbij de maandlasten gedurende de gehele looptijd gelijk blijven. De werkelijke rente en netto maandlasten kunnen variëren, afhankelijk van uw persoonlijke situatie en de hypotheekverstrekker. Raadpleeg een financieel adviseur voor een nauwkeurige berekening en advies. Aan deze berekening kunnen geen rechten worden ontleend; het dient enkel als indicatie.

Documentatie

Kadastrale kaart

Leefomgeving

Plattegronden PDF

WOZ waarderapport

BAG uittreksel

Bezoek onze website

Zonnegrenzen bekijken

Inwoners in Enschede

Cijfers voor postcodegebied 7545

Totaal aantal inwoners
158255 inwoners
Mannen
51%
Vrouwen
49%

Inwoners in Enschede

Cijfers voor postcodegebied 7545

tot 15 jaar
14%
15 tot 25 jaar
16%
25 tot 35 jaar
25%
45 tot 65 jaar
27%
65 en ouder
18%

Huishoudens in Enschede

Cijfers voor postcodegebied 7545

Eenpersoons zonder kinderen
46%
Meerpersoons zonder kinderen
25%
Huishoudens zonder kinderen
71%

Huishoudens in Enschede

Cijfers voor postcodegebied 7545

Huishoudens met één kind
9%
Huishoudens met meerdere kinderen
20%
Huishoudens met kinderen
29%

Woningen in Enschede

Cijfers voor postcodegebied 7545

Woningen voor 1945
34%
Woningen tussen 1945 en 1965
34%
Woningen tussen 1965 en 1975
4%
Woningen tussen 1975 en 1985
2%
Woningen tussen 1985 en 1995
9%

Woningen in Enschede

Cijfers voor postcodegebied 7545

Woningen tussen 1995 en 2005
9%
Woningen tussen 2005 en 2015
7%
Woningen na 2015
1%
Huurwoningen
60%
Koopwoningen
40%

Overige in Enschede

Cijfers voor postcodegebied 7545

Gemiddelde WOZ waarde
€ 168.000,-
Personen onder de 65 met uitkering
14%

Overige in Enschede

Cijfers voor postcodegebied 7545

Adressen per km²
2538
Stedelijkheid (schaal 1 op 5)
100%
Postcode kaart 7545 Gemeente kaart enschede

Korte feiten over Enschede

Enschede is een stad en gemeente in Twente, in het oosten van de Nederlandse provincie Overijssel.

Indien u vragen heeft of u wilt een bezichtiging inplannen, dan kunt u gebruik maken van het formulier hiernaast. Er zal daarna op korte termijn contact met u worden opgenomen.

Kemps Makelaarshuis de makelaar van nu!

De moderne, no-nonsense makelaar van Twente. Waar persoonlijke aandacht centraal staat in onze dagelijkse dienstverlening. Het aan- en/of verkopen van een woning is een spannende gebeurtenis. Dan is het fijn wanneer er een vriend “Homi makelaar” naast je staat die zich hard maakt voor jouw persoonlijk belangen! Dagelijks zijn wij succesvol actief op de Twentse woningmarkt. Je kunt ons o.a. vinden in de plaatsen Enschede, Hengelo & Haaksbergen.

Ieder persoon en elke woning is uniek, daarom hanteren wij altijd een op maat gemaakt plan dat perfect aansluit op jouw woonwensen. Door middel van innovatie en geavanceerde technologie streven wij naar een stressvrije en plezierige ervaring voor onze klanten. Door middel van onze op data gebaseerde strategie bereiken we een uitgebreider publiek dan anderen, en dit gebeurt altijd met een persoonlijke en doelgerichte aanpak, zowel online als offline. Als je vragen hebt over de vastgoedmarkt of wil je meer weten over jouw woning, staan wij altijd klaar om je te helpen.

Kemps Makelaarshuis de makelaar van nu!
Reviews Kemps Makelaarshuis

B.W. ter Kuilestraat 95, Enschede

€ 300.000 k.k. - Beschikbaar